Welcome to the Thomas Model at Canopy Hill!
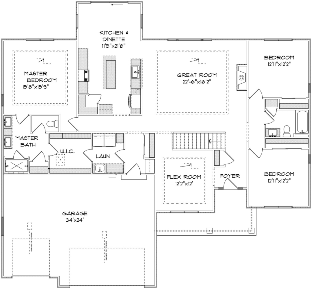
Discover the Thomas model, a beautiful 2237 sq. ft. 3-bedroom, 2-bathroom home with a 3-car garage, perfectly situated on a picturesque lot in the Estates of Canopy Hill. The home’s curb appeal is enhanced by a charming front porch and sophisticated, monochromatic front stone facade.
Upon entering, you’ll be greeted by a versatile flex room featuring a stunning whitewashed wood ceiling and upscale lighting. This space connects to the great room and offers endless possibilities—perfect as a formal dining room, a productive home office, or a cozy family room.
The expansive great room is the heart of the home, bathed in natural light from large windows and anchored by a beautiful gas fireplace with floor-to-ceiling stone. A tranquil wall color creates a serene and inviting atmosphere.
The kitchen is a chef’s delight, boasting a Kohler Strive undermount stainless steel sink, a striking marble backsplash, and a large corner pantry. You’ll find elegant granite and quartz countertops throughout the home, with a spacious dinette that opens to the outdoors through oversized patio doors with transom windows.
The master suite is a true retreat, offering a spacious bedroom with tall ceilings and abundant natural light. The ensuite bath is designed for luxury, featuring a tall double-sink vanity, a large ceramic tile shower and floor, a linen closet, and elegant matte black plumbing fixtures. Convenience is key, with the laundry room expertly located right off the mudroom and providing direct access to the master bedroom’s walk-in closet.
For all sales inquiries for this model or any of the other four new construction homes in progress, please contact Kimberly Hood at 262.770.2672 or kim@newport-builders.com.
Directions: I-94 to Hwy 20. West to Spring Street. Left on Spring Street. Left on Hwy 45/S. Colony Ave. Right onto 5th Avenue into neighborhood (across from the Union Grove High School).



